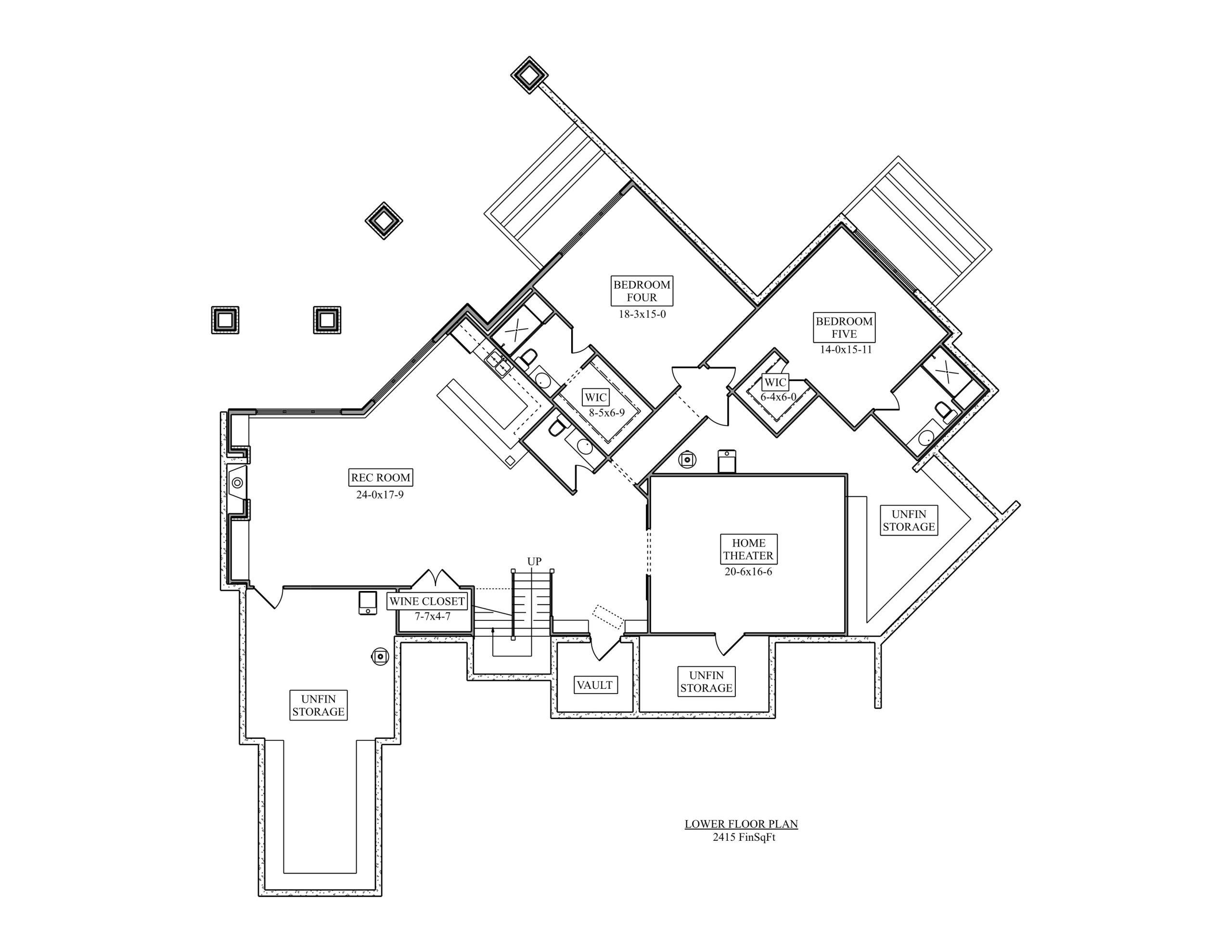
Close The Rowley Downs March 19, 2025 Back to Showcase PreviousNext Search our available floor plans at RentfrowHomePlans.com