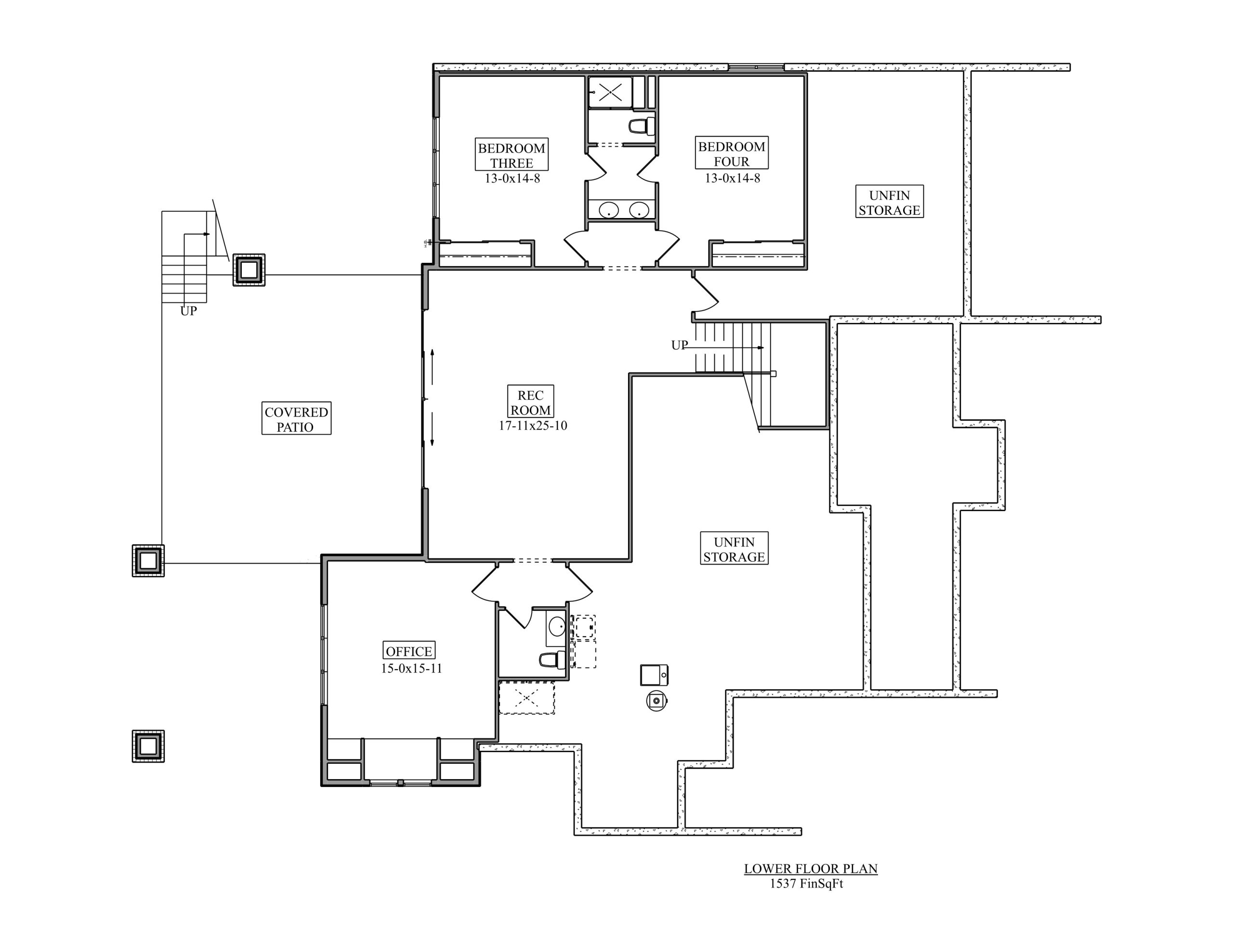
Close The Woody Creek February 22, 2024 Back to Showcase PreviousNext Search our available floor plans at RentfrowHomePlans.com